脈沖除塵器圖紙包括脈沖濾筒除塵器圖紙、單機
脈沖除塵器圖紙,移動脈沖布袋除塵器圖紙、氣箱脈沖布袋除塵器圖紙,長袋脈沖除塵器圖紙等,以下為華康為您新整理的幾種脈沖除塵器圖紙,如果您想要比較詳細的圖紙,可以撥打我們的400電話,我們會為您_提供。
溫馨提示:(您在要脈沖除塵器圖紙時,要提供詳細的除塵器技術參數)
1、脈沖濾筒除塵器圖紙
本圖紙是2015年4月份華康為天津噴漆廠設計的脈沖濾筒除塵器的外形加工全圖,此圖包含脈沖濾筒除塵器的外形尺寸,進出風口尺寸和安裝地基圖等。
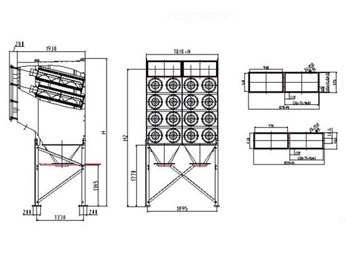
2、單機脈沖除塵器圖紙
本圖紙是我公司在2015年5月份為上海機械設備有限公司設計的單機脈沖除塵器圖紙,此圖紙簡單介紹了除塵器的外形尺寸、進出口尺寸以及所配法蘭尺寸等。
3、移動布袋脈沖除塵器圖紙
本圖紙是華康近幾天為安徽設計的移動布袋脈沖除塵器圖紙,主要介紹了除塵器的外形尺寸和配件等。
4、氣箱脈沖布袋除塵器圖紙
此圖是2015年9月份華康為山西礦山機械設計的氣箱脈沖布袋除塵器圖紙,此圖紙主要介紹了氣箱脈沖布袋除塵器的外形尺寸、進出風口尺寸等。
5、長袋脈沖除塵器圖紙
此圖是2015年華康為山東75噸鍋爐設計的長袋脈沖除塵器圖紙,此圖紙主要介紹了除塵器的外形尺寸、進出口法蘭等。
6、倉頂脈沖布袋除塵器圖紙
此圖是2015年華康為山東糧倉倉頂設計的倉頂脈沖布袋除塵器圖紙,此圖只要介紹了除塵器的外形尺寸和進出口的尺寸等。